The image is post-apocalyptical, foreshadowing an uncertain future yet, somehow, utopian and hopeful. It appears to be the end of the day, the end of a season, the end of an era, with the sun setting wildly over the skyline of downtown Miami. In fact, it’s a rendering for a new condominium project on Miami Beach. But the rendering goes beyond mere real estate promotion and verges on something more ambitious as renowned architect Jean Nouvel and his partners at the JDS Development Group offer up a more visionary and flood-resilient alternative to Miami’s standard pie-in-the-sky condo tower. But how does a single architect make an impact when it comes to pressing matters like climate change, failing infrastructure and income disparity? It’s impossible to make a real difference without the support of a responsible government body. Without it, the individual designer can only hope to set the moral tone on a smaller scale.
The enlightened architect can offer new visions and allegories, even if they are only small parts of an evolving narrative — what might be deemed “urban poetics.” But sometimes the urban geographer is obliged to dig deeper and reveal the prevailing threads of invention, no matter how arbitrary they may seem on first impression. Such is the case with Herzog De Meuron’s highly porous design for Pérez Art Museum Miami, which allows for a 10-foot hurricane surge to pass underneath the museum. Norman Foster’s Faena House condo, finished in late 2015, rests on a “plinth” of reflective water and black concrete walls, while Renzo Piano’s Eighty Seven Park in North Beach now under construction will be surrounded by a continuous ring of water when it opens in 2017. In each case, the future possibility of a sunken city, a New Atlantis, is inferred, however obliquely. Nouvel’s project takes the trope a step further and includes a man-made “lagoon” at its very core, almost as if a wedge of the Everglades had been lifted up and transplanted to the shores of Biscayne Bay. It is not a chlorinated pool but a naturally filtered environment that hosts an array of lush vegetation — imagine Henri Rousseau’s post-Impressionist jungles — with giant ferns, sea grape, spider plants, yaupon, mondo grass, palms and palmettos sprouting all about the lagoon.
“My ‘personal vision’ comes from the very needs of communities, the climate, the history and the culture of a city or of a neighborhood,” said Nouvel in an exclusive interview this week. “All these elements belong to a specific context. This context guides all the decisions I took in Miami as it guides all the projects I build.”
Nouvel’s romantic renderings evoke a sense of the sublime and remind me of a painting by Frederic Edwin Church’s called The Andes of Ecuador (1855). A solar haze animates the outcroppings and craggy heights, the palm trees, a lake and waterfall with moody luminosity, as if all of nature were awaiting the moment of final awakening. Nouvel’s version has the same quality of diffused sunlight and heightened expectation. Buildings are placed peripherally on the site, as if only temporarily there, protected by veils of metal-mesh screening that create a shimmering, multi-layered effect.
While he has made earlier proposals here, this is Nouvel’s first project to be built in Miami. He now joins the pantheon of design gods — Zaha Hadid, Herzog & De Meuron, Rem Koolhaas, Norman Foster, Renzo Piano, Frank Gehry — who have bestowed their Pritzker-Prize genius on this subtropical paradise, a metropolis that suffers chronic Attention Deficit Disorder in its furtive search for new and operable identities. Nouvel managed to change the face of Paris with paradigm-shifting projects like the Arab World Institute, the Foundation Cartier, the Musée du quai Branly and the recently completed Philharmonic Hall. While not as flamboyant or prolific as some of his peers, Nouvel brings to each new project a zealous imagination and passion for discovery. There may not be a single signature move or logo that instantly identifies his work, but each resonates with a meticulous attention to detail and sense of materiality that suggests patience and even — that rarest of virtues in today’s disposable skyline —craftsmanship. Nouvel prides himself on responding to the specifics of a site and, in a sense, starting from scratch every time. No two buildings are alike.
When the Arab World Institute opened in 1987, it signaled a new kind of modernism, one that was alive with kinetic energy, apertures that opened and closed, changing configurations that were intimately responsive to light and weather. Cutting-edge technology merged with ancient forms of poetry and pattern making, and the
project made Nouvel famous. He won the prestigious Aga Kahn Award for Architecture in 1989 and continued to explore the margins of science and metaphor in projects like the Golden Angel (Zlatý Anděl) in Prague, the Doha Tower in Qatar, the Torre Agbar skyscraper in Barcelona, and One New Change in London. His recently completed 100 Eleventh Avenue in Manhattan features a glass-curtain facade of 1,650 panes set at different angles to create what Nouvel refers to as a “vision machine.”

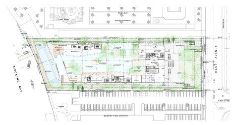
On South Beach, 13 small private lots off of West Avenue were pulled together to create a single elongated site that runs east to west. A prior developer proposed a fairly massive, 150-foot-high condo block on the site that was never approved. In Nouvel’s design, mass has been broken down into two narrow structures. One is 14 stories high, the other only seven stories — mere slivers compared to some of the neighboring towers — containing 54 condo units in all. The towers are slightly cranked and open to the bay, in contrast to the seemingly counter-intuitive trend of maxing out building lots with monolithic facades that block views and cast broad shadows across the beach. (Such is the case with the Surf Club Four Seasons at 90th & Collins, a project designed by Richard Meier and Kobi Karp that seems grossly out of scale with its Surfside neighborhood).
The outer walls of the Nouvel structures are staggered and overlapping like metallic shields but translucent and perforated — more like a sieve — giving their the double-skinned membranes a hovering, ephemeral quality. The two-story-high lobby will be transparent; for passersby on West Avenue, it will appear as an open garden landscape from curbside to bay with uninterrupted sight lines through lobby, past lagoon and narrow swimming pool, and across the bay.

In the renderings produced in Nouvel’s Paris studio, plants such as jade vine, Spanish moss and tillandsia hang down from rooftop terraces, helping to minimize solar heat while adding all the more to a sense of future ruin and dystopian precognition (think WIlliam Gibson, think Philip K. Dick.) Outer facades will be buffered by vertical gardens supported by stainless steel mesh for shade and privacy. A public-access pathway will traverse the south side of the property and connect West Avenue to Baywalk, a public promenade that remains incomplete.
“The site proportions were very elongated in the east-west direction,” explained Nouvel. “We chose to arrange the project on the periphery of the property in order to free the center of the site and allow all to experience the best views.”
The neighborhood along West Avenue is Ground Zero for sea-level rise and the city’s costly attempts to mitigate future flooding with raised streets, pumping stations, bizarre hillocks and sunken sidewalks, in what appears to be an urban-scale version of Miami-style plastic surgery. “We are working to accommodate the water rise through the landscape and the lagoon itself,” said Nouvel. “We also are working with the new road elevations along West Avenue.” An underground parking area has been built in what developer Michael Stern calls a concrete bathtub with a flood-proof lid.
Parts are broken down and tapered towards infinity. In fact, the entire complex acts as a kind of giant infinity pool — Nouvel calls it a “reflection machine” — with its softly feathered edges, vanishing points, wavering lines of sight and other mirage-like effects. The architecture is sponge-like, open and inviting to the waters of Biscayne Bay and the fleckless Miami sky. The architect appears to be seeking a unity of purpose and compromise between future and past, an imaginary realm of wild sunsets, mating manatees and tangled mangrove roots before the coming of Flagler, Fisher or the Kardashians: a 70,720- square-foot slice of Eden, rebooted.
The Monad Terrace proposal was enthusiastically approved by Miami Beach’s Design Review Board. The DRB cited it as a model for future waterfront development. One board member even expressed interest in living there when it was completed.
A version of this story appeared in the Miami Herald on May 13, 2016.


renderings mostly deceive or lie, as we all know, yet this proposed design is breathtakingly appealing,so here is wishing it becomes real. mr. nouvel’s recent and recently unclaimed Philarmonie de Paris had some appeal as a drawing but suffers from a complete disjoining of a functional, warm, communal interior with an grossly unappealing exterior and circuation space.
it is wonderful, however, to see that Miami has now shedded the insulting past of the best architects doing their worst work when here.
a pleasure to read your work. always.
A beautifully written and poetic treatment of structure in the midst of global change. Inspiring.
Delighted
Sent from my iPad So glad to get your blog. More anon.
>